Skip to content

mofussillab

r kiran kumar – architect / academic

  • Blog
  • Drawings
  • Teaching
  • Practice
  • About

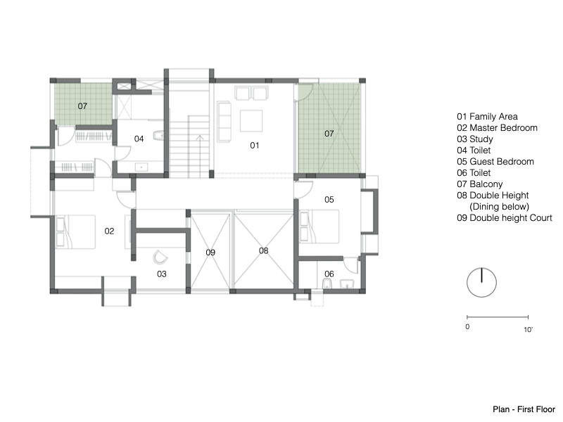
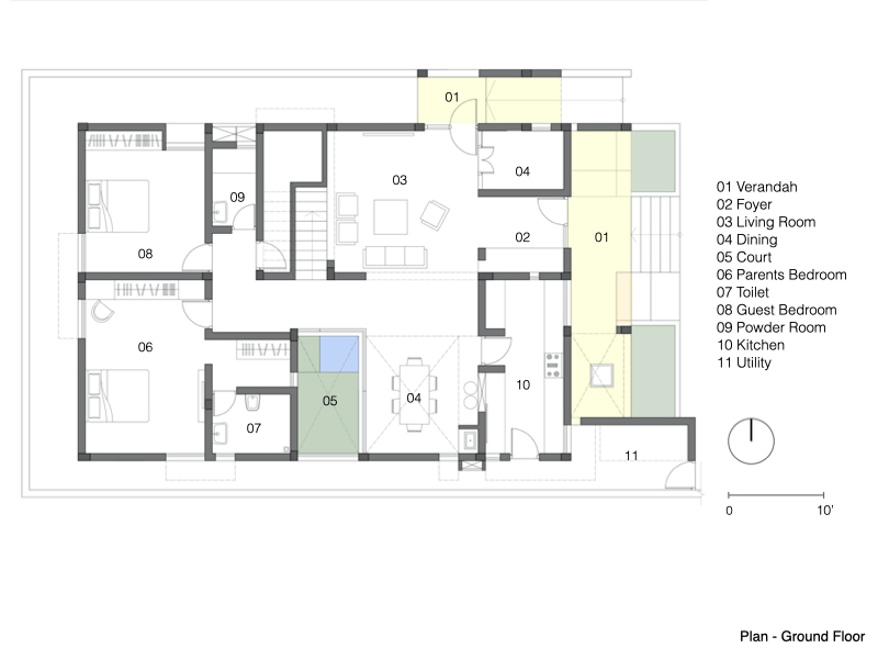
Datta Niwas, Bellary

Share this:

  • Email a link to a friend (Opens in new window) Email
Posted on April 14, 2021April 15, 2021 by KiranPosted in Practice

Post navigation

Previous Previous post: Nuances of Blackboard : 2
Next Next post: Christopher Alexander’s 15 principles : 02

MOFUSSILLAB is the personal website of R Kiran Kumar

This is a platform to archive the different explorations at the intersection of blogging, teaching, practice, reading and drawing. I currently teach as Associate Professor at WCFA, Mysore

Categories

  • Blog (65)
  • Drawings (33)
  • Practice (1)
  • Teaching (17)

Instagram : rkirankumar9

Enter your email address to subscribe to this blog and receive notifications of new posts by email.

All posts

  • Drawing 33
  • Keeping a Notebook : Simon Unwin
  • Two Books : At the start of Thesis
  • Thesis Note : How much to draw?
  • Drawing 32
  • Drawing 31
  • Essential Reminders : First Year Drawing Class
  • The Graphics Checklist
  • Architectural Playlist
  • Growing ideas
  • Theory as an organising tool
  • 10 Books : With lenses
  • Drawing 30 : Kannur
  • Reading : The Thinking Hand
  • Drawing 29
  • Nuances of Blackboard : 3
  • Drawing 28
  • Composition of Loam
  • Drawing 27
  • Drawing 26
  • Drawing 25 : Space Fragments
  • 10 Books : Graphic Novels
  • Reading List : Theory
  • Drawing 24
  • Thesis : Slowing Down – Exploring Food Through Space
  • Map of your mind
  • Drawing 23
  • Scalar Comparison
  • Diagrams – Theory 1
  • Semester 6 – Institution
  • Drawing 22
  • Drawing 21
  • Drawing 20
  • Point of entry / departure
  • Drawing 19
  • Drawing 18
  • Framework – Sem 6
  • Drawing 17
  • Drawing 16
  • Reading : Masala Shakespeare
  • Drawing 15
  • Space within a Space : Well in Joji
  • Drawing 14
  • List 01 : Steven Holl
  • Sequential Diagramming
  • Listening to Eno
  • Surface Development
  • Drawing 13
  • Precedent Diagrams
  • Drawing 12
  • Drawing 11
  • Drawing 10
  • The Cook and the Chef
  • Teaching and gardening
  • Christopher Alexander’s 15 principles : 02
  • Datta Niwas, Bellary
  • Nuances of Blackboard : 2
  • Nuances of Blackboard
  • Notes : Learning from Ekalavya
  • Drawing with care
  • Drawing 09
  • Genre / Generic : 02
  • Genre / Generic
  • Buridan’s Donkey
  • Calm / Assertive
  • Reading : A Place of My Own
  • Drawing 08
  • On Balance
  • Drawing 07
  • Drawing 06
  • Mise en place
  • Form as a medium
  • Diagramming ‘theory’
  • Architecture as an instrument
  • Notes : Peter Elbow on writing
  • 10 years of reading
  • Rereading : Inception
  • On tracing
  • Stereotomic and Tectonic : 02
  • Stereotomic and Tectonic : 01
  • Notes : Instrumental and Existential Knowledge
  • Drawing 05
  • Drawing 04
  • Research and Design
  • Seeing oneself in paper
  • 10 reasons : Why Corbusier is still relevant
  • ‘Preparing’ for a lecture
  • Nolan’s Drawings
  • Notes from ‘Theoretical Practice’ 
  • Spaces between buildings
  • Christopher Alexander’s 15 principles
  • Drawing 03
  • Drawing : 02
  • Tracing IIM
  • Wall Sections
  • Intersection of Solids
  • Drawing : 01
  • 10 Books : On Drawing
  • Operations of Reading
  • Space within a space : Weavers House, Melkote

Kiran
Website Built with WordPress.com.
  • Subscribe Subscribed
    • mofussillab
    • Join 61 other subscribers
    • Already have a WordPress.com account? Log in now.
    • mofussillab
    • Subscribe Subscribed
    • Sign up
    • Log in
    • Copy shortlink
    • Report this content
    • View post in Reader
    • Manage subscriptions
    • Collapse this bar
 

Loading Comments...
 

You must be logged in to post a comment.